
5A级产品
A级品牌--“兴发牌”、中国驰名商标、国际质量之星钻石奖、中国建筑铝型材二十强企业、军工质量管理体系认证产品、40年专业生产铝型材经验
A级品质--选用国内优质AOO铝锭,先进设备挤压制作,工艺独特,先进检测设备,40年信誉保证
A级标准--行业第一家国家认可实验室——理化检测中心、国家企业技术中心、省级重点铝型材工程技术研究开发中心、博士后科研工作站
A级性能--采用先进设备挤压制造、高强度、高性能、结构紧密、安全省心、十万次检测无损害
A级服务--全国七大生产基地、生产服务辐射全国、全程跟踪、交期无忧
质量检测
兴发所供产品均按“铝合金建筑型材—国家标准”GB5237的高精级标准验收,通过IS09001质量管理体系、ISO14001环境管理体系、SO45001职业健康安全管理体系、GJB9001C武器装备质量管理体系认证、IATF16949质量管理体系标准、挪威船级社DNV认证。产品的保修期符合标准要求,特殊系列产品按相应的行业和企业标准协商确认执行。

兴发铝业铝型材生产工艺流程一站式服务:
模具--熔铸--挤压--氟碳--喷涂--氧化--电泳--断桥--注胶--仓储
产品供货:
通过ERP系统合理安排生产计划,常规门窗材料交货一般为12-18天,常规幕墙材料交货期一般为15-24天,系统开设相应的特殊订单程序,用于及时处理样板订单、首批订单、特急订单及补料单等,以满足不同客户、工程项目的供货期要求。
产品包装:
单支产品贴有防伪商标,每扎贴有标准的合格证标识,并附质保书,保证正品销售。
交货周期:
1.我公司有年产能达80万吨的实际生产能力,能满足贵公司的订单准时供货的需要。
2.各品种具体生产交货周期(以接订单日起批量×吨数计算)
注:上述生产周期不含工程选用新开模具,如门窗系列新开模需增加模具设计开模时间7天,幕墙型材开模时间7天。
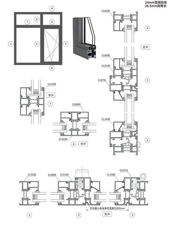
咨询:AL6024C系列隔热节能内开内倒窗
* 为必填项